NOVI PROJEKT Rio Rijeka, Kantrida

ID: 4169-1 Stan u novogradnji, prodaja
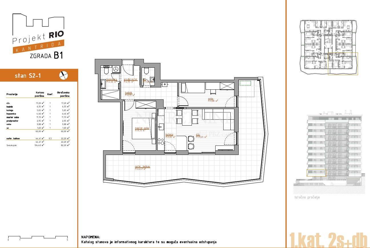
Površina: 82,20 m²
Soba: 2 S+DB
Kupaonica: 1
344.418,00 € 2.595.017,42 kn

Osnovni podaci

Grad:Rijeka

Uža lokacija:Kantrida

Cijena/m²:4.190,00 €

Površina:82,20 m²

Soba:2 S+DB

Kupaonica:1

Katnost:prv/10

Stanje:U izgradnji

Energetski certifikat:A

Opis

NOVO - Stambeni kompleks Rio-Kantrida u Rijeci, objekti B1 i B2 

Kompleks se nalazi na atraktivnoj lokaciji Kantrida – Marčeljeva Draga, lokacija na pola puta između centra Rijeke i Opatije. Idealna pozicija stanova omogućava dostupnost svim sadržajima – školi i vrtiću, zelenim površinama, šetnjicama, shopping centrima, sportskim terenima i ostalim bitnim društvenim i javnim sadržajima s pogledom na opatijsku rivijeru, more i otoke.

  • Stan oznake S2-1-B1 ukupne netto površine 82,20 m² u objektu B1 - prvi kat, a sastoji se od predprostora, hodnika, dnevnog boravka i kuhinje, 2 spavaće sobe, kupaonice, wc-a i balkona.

U izgradnji je višestambena građevina sa 78 stambenih jedinica raspoređenih na 11 etaža, prizemlje i deset katova. Na etaži suterena (-1) i podruma (-2) planiran je smještaj garažnih parkirnih mjesta i spremišta.

Izgradnja i oprema sa visokokvalitetnim materijalima koji zadovoljavaju najviše kriterije gradnje koje prati moderno i sofisticirano uređenje.

Raspon cijene stanova, ovisno o etaži i orijentaciji,  je od 3.390,00 €/m² do 4.490,00 €/m².

Cjenik stanova je podložan promjenama te je njegova valjanost vremenski ograničena (postojeći vrijedi do 30.06.2025.).

 Uz stan je obavezno garažno parkirno mjesto i spremište.

 Dovršetak projekta i useljenje očekuju se do 30.06.2027.

 NAPOMENA: Kupac plaća agencijsku proviziju od 1% + PDV

Ostali podaci

Ostali podaci

  • Novogradnja
  • Useljivo od: 30.06.2027
  • Orijentacija: Jugoistok
  • Br. toaleta: 2
  • Br. spavaćih soba: 2
  • Godina izgradnje: 2027

Opis nekretnine

  • Pogled na more

Prostorije (objekti) uz nekretninu

  • Balkon, 22,20 m²

Dozvole

  • Građevinska dozvola

Tlocrt

Broj pregledavanja: 1191

Slične nekretnine

Stanovi novogradnja Rijeka, Kantrida

Površina: 83,82 m²

Soba: 4

326.059,80 €

NOVOGRADNJA STANOVI RUJEVICA - RIJEKA

Površina: 74,14 m²

Soba: 3

292.853,00 €

NOVI PROJEKT Rio Rijeka, Kantrida

Površina: 84,46 m²

Soba: 3 S+DB

345.441,40 €

NOVOGRADNJA STANOVI RUJEVICA - RIJEKA

Površina: 94,63 m²

Soba: 4

373.789,00 €

NOVOGRADNJA STANOVI RUJEVICA - RIJEKA

Površina: 79,04 m²

Soba: 3

296.400,00 €

Fiksni tečaj konverzije: 1 EUR = 7.53450 kn

Moji favoriti

Moguće je dodati najviše 12 nakretnina u Favorite, ako želite dodati i ovu nekretninu obrišite neku od već odabranih.

Moji favoriti

Jeste li sigurni da želite ukloniti sve označene nekretnine iz favorita?