NOVI PROJEKT Rio Rijeka, Kantrida
Osnovni podaci
Grad:Rijeka
Uža lokacija:Kantrida
Cijena/m²:4.090,00 €
Površina:84,46 m²
Soba:3 S+DB
Kupaonica:1
Katnost:tre/10
Stanje:U izgradnji
Energetski certifikat:A
Opis
NOVO - Stambeni kompleks Rio-Kantrida u Rijeci, objekti B1 i B2
Kompleks se nalazi na atraktivnoj lokaciji Kantrida – Marčeljeva Draga, lokacija na pola puta između centra Rijeke i Opatije. Idealna pozicija stanova omogućava dostupnost svim sadržajima – školi i vrtiću, zelenim površinama, šetnjicama, shopping centrima, sportskim terenima i ostalim bitnim društvenim i javnim sadržajima s pogledom na opatijsku rivijeru, more i otoke.
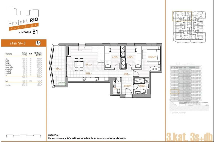
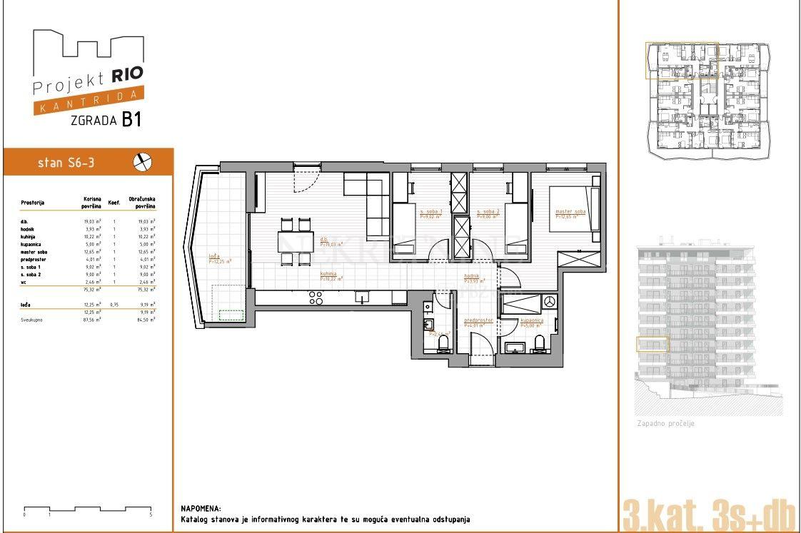
- Stan oznake S6-3-B1 ukupne netto površine 84,46 m² u objektu B1 - treći kat, a sastoji se od predprostora, hodnika, dnevnog boravka i kuhinje, 3 spavaće sobe, kupaonice, WC-a i lođe.
U izgradnji je višestambena građevina sa 78 stambenih jedinica raspoređenih na 11 etaža, prizemlje i deset katova. Na etaži suterena (-1) i podruma (-2) planiran je smještaj garažnih parkirnih mjesta i spremišta.
Izgradnja i oprema sa visokokvalitetnim materijalima koji zadovoljavaju najviše kriterije gradnje koje prati moderno i sofisticirano uređenje.
Raspon cijene stanova, ovisno o etaži i orijentaciji, je od 3.390,00 €/m² do 4.490,00 €/m².
Cjenik stanova je podložan promjenama te je njegova valjanost vremenski ograničena (postojeći vrijedi do 30.06.2025.).
Uz stan je obavezno garažno parkirno mjesto i spremište.
Dovršetak projekta i useljenje očekuju se do 30.06.2027.
NAPOMENA: Kupac plaća agencijsku proviziju od 1% + PDV
Ostali podaci
Ostali podaci
- Novogradnja
- Useljivo od: 30.06.2027
- Orijentacija: Sjeverozapad
- Br. toaleta: 1
- Br. spavaćih soba: 3
- Godina izgradnje: 2027
Prostorije (objekti) uz nekretninu
- Loggia, 9,24 m²
Dozvole
- Građevinska dozvola
