Logistički centar Jankomir - Hala zakup
ID: 4104-1 Hala, najam
Površina: 800,00 m²
Soba: 4
6.800,00 € 51.234,60 kn
Osnovni podaci
Grad:Zagreb
Uža lokacija:Jankomir
Cijena/m²:8,50 €
Površina:800,00 m²
Soba:4
Katnost:pri
Stanje:Uređeno i održavano
Opis
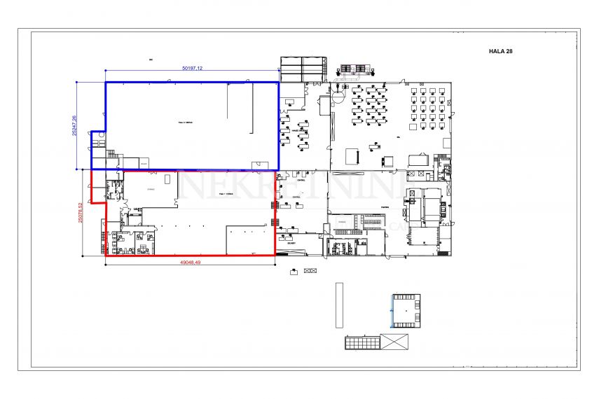
U poslovnoj zoni robnih terminala u ponudi je zakup poslovnog prostora - skladišne hale, ukupne površine 800,00 m2 a koji se sastoji od skladišnog prostora površine 770,00 m2 i uredsko sanitarnog prostora površine 30,00 m2. Vsina prostora je od 3,1m do 4m. Hala se nalazi u logističkom centru Jakomir sa odličnom prometnom povezanošću.
Ostali podaci
Ostali podaci
- Orijentacija: Sjeverozapad
- Br. toaleta: 2
Opis nekretnine
- Visina stropa: 3.1 do 4 m
- Pozicija: U industrijskoj/gospodarskoj zoni
Tlocrt
Opis mjesta
Gradska četvrt Stenjevec nalazi se na zapadnom dijelu grada Zagreba. Prema prosjeku godina stanovnika jedna je od mlađih četvrti.
Više 